中古戸建
【494】 東淀川区大道南1
おすすめポイント
R7年8月フルリフォーム済
基本物件情報
価格
2,980万円
㎡単価
万円
管理費
円/月
修繕積立費
円/月
所在地
大阪市東淀川区大道南1丁目30-20
小・中学校区
交通(電車)
今里筋線だいどう豊里駅徒歩 12分
交通(バス)
敷地面積
敷地権割合共
土地権利
所有権
土地計画・用途地域
第一種住居地域
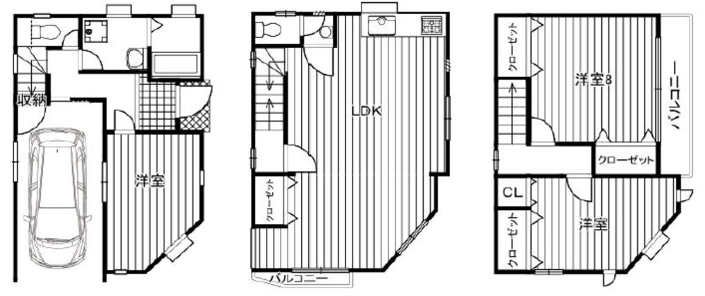
建物面積
建物面積 延べ 113.23㎡ 1階 38.67㎡ 2階 39.69㎡ 3階 34.87㎡
方角
専有面積
バルコニー
間取り
3LDK
建物構造
木造
所在階
地上・地下階
地上階 3階
築年月
1994年8月
総戸数
駐車場
有
駐車場費用
円/月
設備・条件等
土地面積
49.77㎡
地目
宅地
私道負担
地勢
平坦
セットパック
建築条件
地域地区
国土法届出
建ぺい率
80%
容積率
200%
接道状況
公道接面 7.1m 方向 南西 幅員6.0m 公道接面 6.3m 方向 南東 幅員4.0m
その他法令上の制限
都市計画 市街化区域
地域地区 準防火
管理組合
管理形態
管理人状況
管理会社
分譲会社
施工会社
現況
空家
引き渡し時期
即日可能
備考
クロス床工事・建具新調・玄関扉新調・電気増設工事
洗い工事・キッチン新調・浴室新調・トイレ新調
間取り変更工事・外壁塗装・防水工事





